Villa singola in vendita

Anzola Dell'Emilia, Via fiorini
€ 440.000
5 locali 5 locali
277 Mq 277 Mq
2 bagni 2 bagni

Villa singola in vendita

Anzola Dell'Emilia, Via fiorini

Descrizione annuncio

ANZOLA DELL'EMILIA: In zona molto strategica di Anzola dell'Emilia, proponiamo una villa indipendente di 277 mq con area cortiliva.

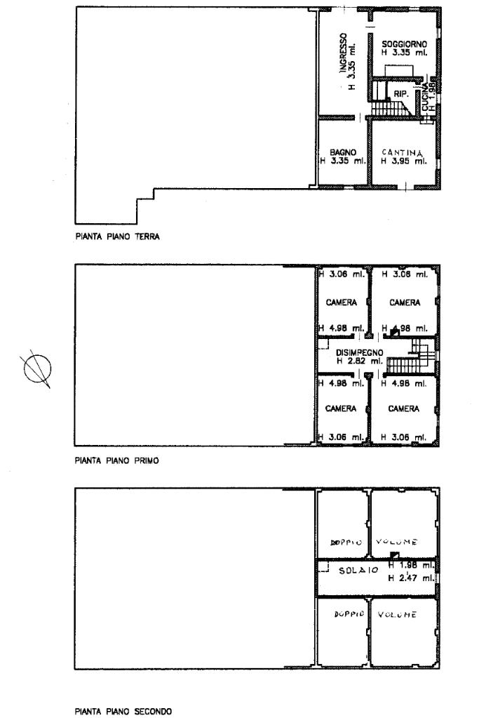
L'immobile si sviluppa su tre livelli: al piano terra si trova un ampio soggiorno con camino, cucina abitabile con collegamento al giardino, un bagno finestrato con doccia e una stanza attualmente adibita come studio. La pavimentazione in laterzio ricopre completamente la zona giorno e il disimpegno al piano superiore.

Salendo al primo piano si accede ad un pratico corridoio che separa le quattro camere da letto, (ognuna con pavimentazione in in ceramica) dal bagno finestrato e con vasca.

All'ultimo piano invece si trova una mansarda abitabile attualmente allo stato grezzo da adibire come spazio aggiuntivo.

Il riscaldamento nell'abitazione è autonomo alimentato con bombolone a gpl o stufa a legna e diffuso con termosifoni in acciaio. Gli infissi sono in doppio vetro di legno con zanzariere e inferiate.

Completa la proprietà una taverna al piano terra collegta all'abitazione, con piano bar, riscaldata da stufa a pellet, ideale per chi ama organizzare feste ed eventi; un garage ed uno grande giardino privato con piscina.

Per fissare una visita all'immobile o per approfondire i passaggi volti al cambio abitazione, come una VALUTAZIONE del suo immobile o una CONSULENZA DI MUTUO, ci contatti allo 051/2812158. Siamo disponibili presso la nostra sede in Via Matteotti n°2/A a Calderara di Reno,dalle 09:00 alle 13:00 e dalle 15:00 alle 20:00.
Ogni agenzia ha un proprio titolare ed è autonoma - Le presenti informazioni non costituiscono elemento contrattuale.

Mostra tutto

Nelle vicinanze

Trasporto pubblico Trasporto pubblico
Anzola dell’Emilia
Anzola dell’Emilia
2,4 Km
stazione di Samoggia
stazione di Samoggia
2,9 Km
Palazzina
Palazzina
2,1 Km
Cà D'Oro
Cà D'Oro
2,2 Km
Scuole Scuole
Scuola Media Giovanni Pascoli
2,6 Km
Farmacia Farmacia
Comunale
2,6 Km
Barbolini
2,9 Km
Supermercati Supermercati
COOP Anzola
2,5 Km
Negozi Negozi
Fashion Diffusion
2,1 Km
Panificio Giusti
2,8 Km
Bar Bar
Bar ARCI Borgata Città
1,3 Km
Fred & Steve
2,4 Km
Ristoranti Ristoranti
Ristorante La Palazzina
2,0 Km
Agriturismo Mongiorgi "I Salici"
2,3 Km
San Bartolo
2,3 Km
Il Ristorantino da Dino
2,4 Km
L'E' Bon Da Mat
2,5 Km
Mostra tutto

Caratteristiche

Rif.:
61178093
Piano:
Basso di 3
Totale piani:
3
Box:
1
Camere da letto:
5
Arredamento:
Parziale
Mostra tutto
Prezzo Prezzo
€ 440.000
Rata mutuo Rata mutuo
€ 2.074 / mese
Spese annue Spese annue
€ 1.200
Proponi il tuo prezzoProponi il tuo prezzo

Classe Energetica

G
G
G
G
G
G
G
G
G
EP globale non rinnovabile:
3.51 kW h/m² anno
EP globale rinnovabile:
3.51 kW h/m² anno
EP invernale del fabbricato:
EP estiva del fabbricato:
Anno di costruzione:
1960
Riscaldamento:
Autonomo
Tipo impianto:
A radiatori
Tipo alimentazione:
GPL

Ti interessa visionare l'immobile?

Fissa un appuntamento  Fissa un appuntamento

Richiedi informazioni

Clicca su Leggi per aprire l'informativa
* Questi campi sono obbligatori

Calcola il tuo mutuo

Semplice e senza impegno
Anticipo

( % )
Mutuo

( % )

pochi semplici passi

inserisci i tuoi dati
Questionario completato
Grazie per aver richiesto un appuntamento senza impegno con un nostro Consulente del Credito e Assicurativo.

Hai inserito correttamente tutti i dati necessari e a breve riceverai una e-mail con un link da convalidare per inviare i tuoi dati.
Affiliato
Studio Calderara Srl
Via Matteotti, 2/A 40012 Calderara Di Reno (BO)
Via Matteotti, 2/A 40012 Calderara Di Reno (BO)
Zona: Calderara di Reno-Lippo-Longara-Sala Bolognese-Padulle
Mostra su mappa
Orari: LUN 09:00 - 13:00 / 15:00 - 20:00 MAR 09:00 - 13:00 / 15:00 - 20:00 MER 09:00 - 13:00 / 15:00 - 20:00 GIO 09:00 - 13:00 / 15:00 - 20:00 VEN 09:00 - 13:00 / 15:00 - 20:00 SAB 09:00 - 13:00 DOM CHIUSO
Affiliato
Studio Calderara Srl
Via Matteotti, 2/A 40012 Calderara Di Reno (BO)

2026 Tecnocasa Franchising S.p.A. - P. IVA 08365160152 - Via Monte Bianco 60/A 20089 Rozzano (MI). Ogni agenzia ha un proprio titolare ed è autonoma. Privacy policy | Policy utilizzo | Cookie policy