Porzione di quadrifamiliare in vendita

Calderara Di Reno, Via Bacciliera - Sacerno
€ 399.000
5 locali 5 locali
150 Mq 150 Mq
2 bagni 2 bagni

Porzione di quadrifamiliare in vendita

Calderara Di Reno, Via Bacciliera - Sacerno

Descrizione annuncio

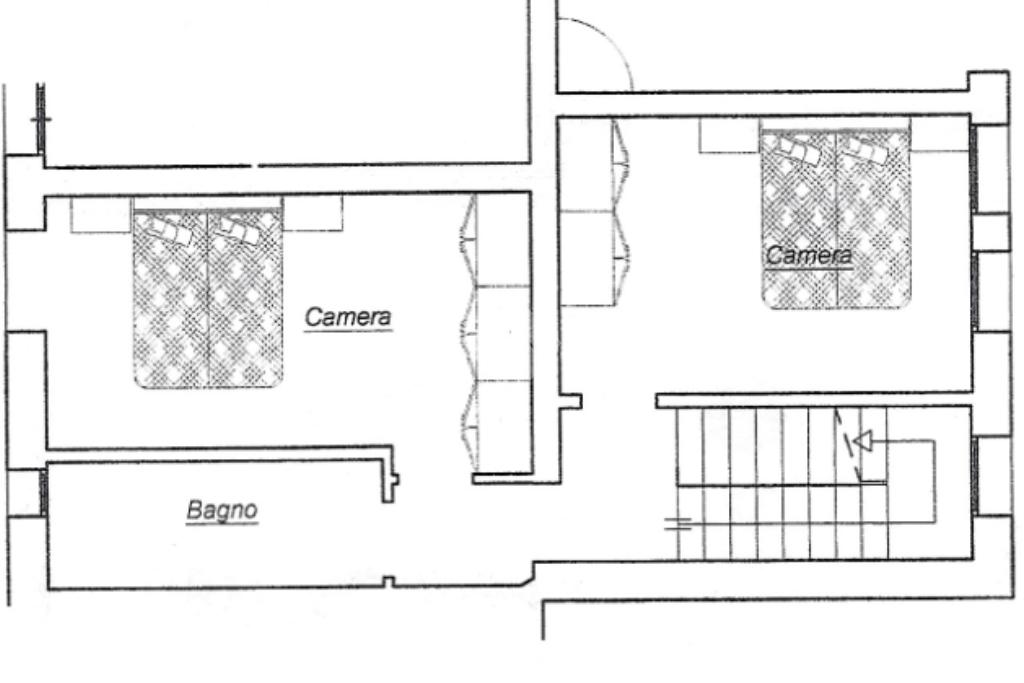
CALDERARA DI RENO: In situaziane di assoluta tranquillità e circondata dal verde, proponiamo in vendita PORZIONE di quadrifamiliare del 2007 con giardino privato.

Luminoso soggiorno

Cucina abitabile lasciata a vista

Tre camere da letto: una matrimoniale con cabina armadio, e due singole

Due bagni: uno con doccia, l’altro con vasca idromassaggio, ma entrambi finestrati.
Dotazioni di pregio:

Riscaldamento autonomo con caldaia a condesazione e termosifoni in acciao

Infissi in legno con doppi vetri

Cappotto termico e pannelli fotovoltaici

Inferriate e zanzariere

Pavimenti in parquet nella zona notte e in gress nella zona giorno

Completano la propietà due posti auto ampi e i cortili, disposti uno all'ingresso della prorpietà e uno sul retro, che gode anche di una spaziosa veranda.

Soluzione ideale per famiglie che cercano spazi comodi, comfort moderno e tranquillità a pochi minuti da Bologna.
Per fissare una visita all'immobile o per approfondire i passaggi volti al cambio abitazione, come una VALUTAZIONE del suo immobile o una CONSULENZA DI MUTUO, ci contatti allo 051/2812158. Siamo disponibili presso la nostra sede in Via Matteotti n°2/A a Calderara di Reno,dalle 09:00 alle 13:00 e dalle 15:00 alle 20:00.
Ogni agenzia ha un proprio titolare ed è autonoma - Le presenti informazioni non costituiscono elemento contrattuale.

Mostra tutto

Nelle vicinanze

Trasporto pubblico Trasporto pubblico
Anzola dell’Emilia
Anzola dell’Emilia
2,6 Km
61 Punta Di Mezzo Levante
61 Punta Di Mezzo Levante
1,6 Km
60 Punta 15
60 Punta 15
1,8 Km
Scuole Scuole
Scuole
2,7 Km
Farmacia Farmacia
Lavino di Mezzo
2,9 Km
Comunale
2,9 Km
Barbolini
3,0 Km
Supermercati Supermercati
Conad
2,9 Km
Negozi Negozi
DICO
2,7 Km
Fashion Outlet
2,8 Km
Bar Bar
Il Cremino
2,8 Km
Ristoranti Ristoranti
Sacerno
390 m
Ambasciata Salentina
2,6 Km
Trattoria La Bassa
2,6 Km
Ballarini
2,8 Km
Mostra tutto

Caratteristiche

Rif.:
61093863
Piano:
2 di 2 (Piano terra con giardino)
Posti auto:
2
Camere da letto:
3
Arredamento:
Assente
Condizionamento:
Autonomo
Mostra tutto
Prezzo Prezzo
€ 399.000
Rata mutuo Rata mutuo
€ 1.880 / mese
Spese annue Spese annue
€ 1.200
Proponi il tuo prezzoProponi il tuo prezzo

Classe Energetica

A1
A1
A1
A1
A1
A1
A1
A1
A1
EP globale non rinnovabile:
0.90 kW h/m² anno
EP globale rinnovabile:
0.90 kW h/m² anno
EP invernale del fabbricato:
EP estiva del fabbricato:
Anno di costruzione:
2007
Riscaldamento:
Autonomo
Tipo impianto:
A radiatori
Tipo alimentazione:
Metano

Ti interessa visionare l'immobile?

Fissa un appuntamento  Fissa un appuntamento

Richiedi informazioni

Clicca su Leggi per aprire l'informativa
* Questi campi sono obbligatori

Calcola il tuo mutuo

Semplice e senza impegno
Anticipo

( % )
Mutuo

( % )

pochi semplici passi

inserisci i tuoi dati
Questionario completato
Grazie per aver richiesto un appuntamento senza impegno con un nostro Consulente del Credito e Assicurativo.

Hai inserito correttamente tutti i dati necessari e a breve riceverai una e-mail con un link da convalidare per inviare i tuoi dati.
Affiliato
Studio Calderara Srl
Via Matteotti, 2/A 40012 Calderara Di Reno (BO)
Via Matteotti, 2/A 40012 Calderara Di Reno (BO)
Zona: Calderara di Reno-Lippo-Longara-Sala Bolognese-Padulle
Mostra su mappa
Orari: LUN 09:00 - 13:00 / 15:00 - 20:00 MAR 09:00 - 13:00 / 15:00 - 20:00 MER 09:00 - 13:00 / 15:00 - 20:00 GIO 09:00 - 13:00 / 15:00 - 20:00 VEN 09:00 - 13:00 / 15:00 - 20:00 SAB 09:00 - 13:00 DOM CHIUSO
Affiliato
Studio Calderara Srl
Via Matteotti, 2/A 40012 Calderara Di Reno (BO)

2026 Tecnocasa Franchising S.p.A. - P. IVA 08365160152 - Via Monte Bianco 60/A 20089 Rozzano (MI). Ogni agenzia ha un proprio titolare ed è autonoma. Privacy policy | Policy utilizzo | Cookie policy